Zum Inhalt wechseln
Start
Projekte
Auszeichnungen
News
Netzwerk
Über uns
Karriere
Kontakt
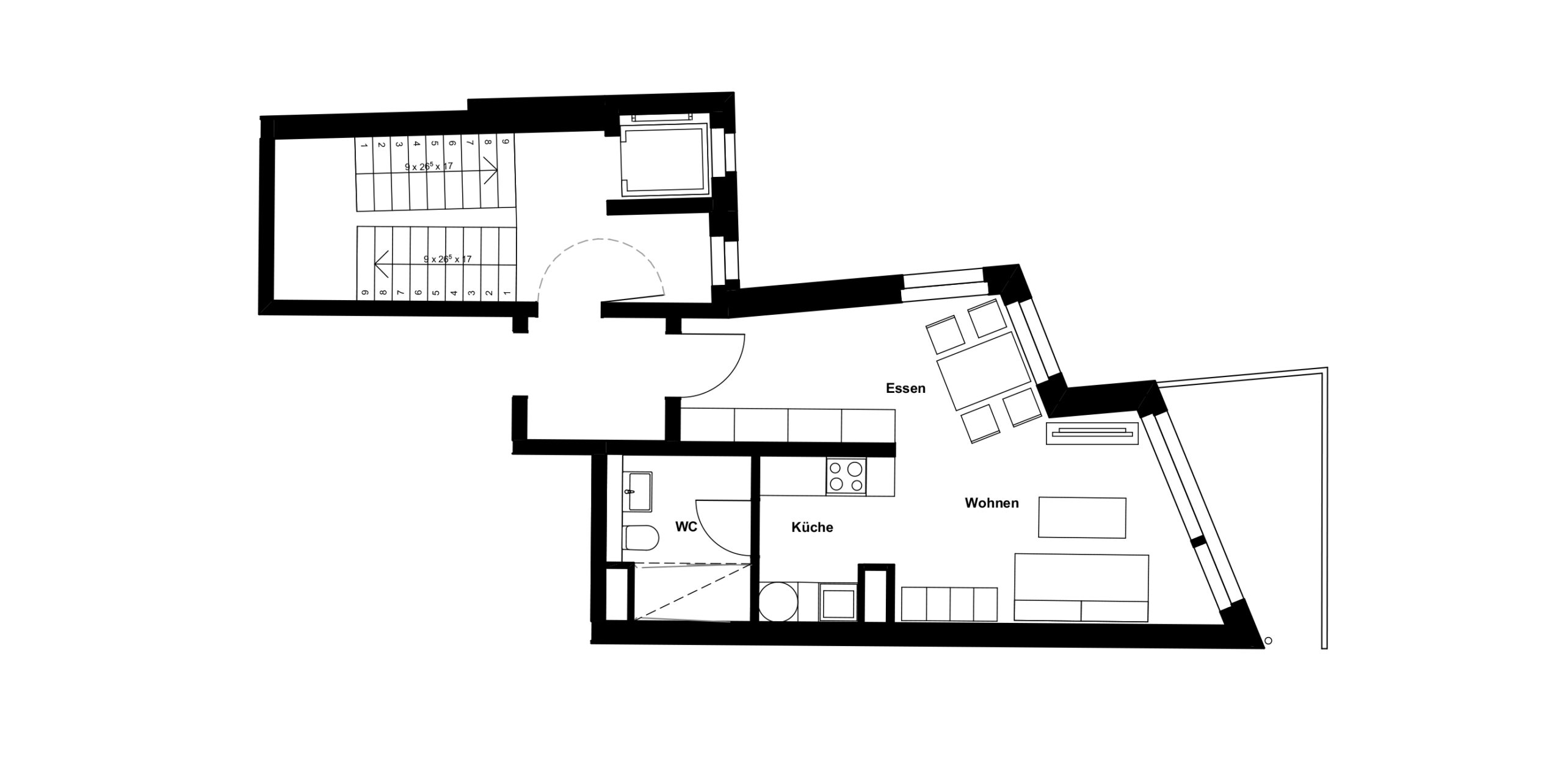
Neue Grünstraße Geschäftshaus
Daten
Kategorie:
Wohnungsbau
Baujahr:
2016
Status:
Fertiggestellt
Fotograf:
GHA
Bauherr:
Privat
Weitere Projekte
Am Iderfenngraben
Santo Hotel Köln
Pier 51
Markgrafendamm
Scheune Dittmar
Die Macherei München