Zum Inhalt wechseln
Start
Projekte
Auszeichnungen
News
Netzwerk
Über uns
Karriere
Kontakt
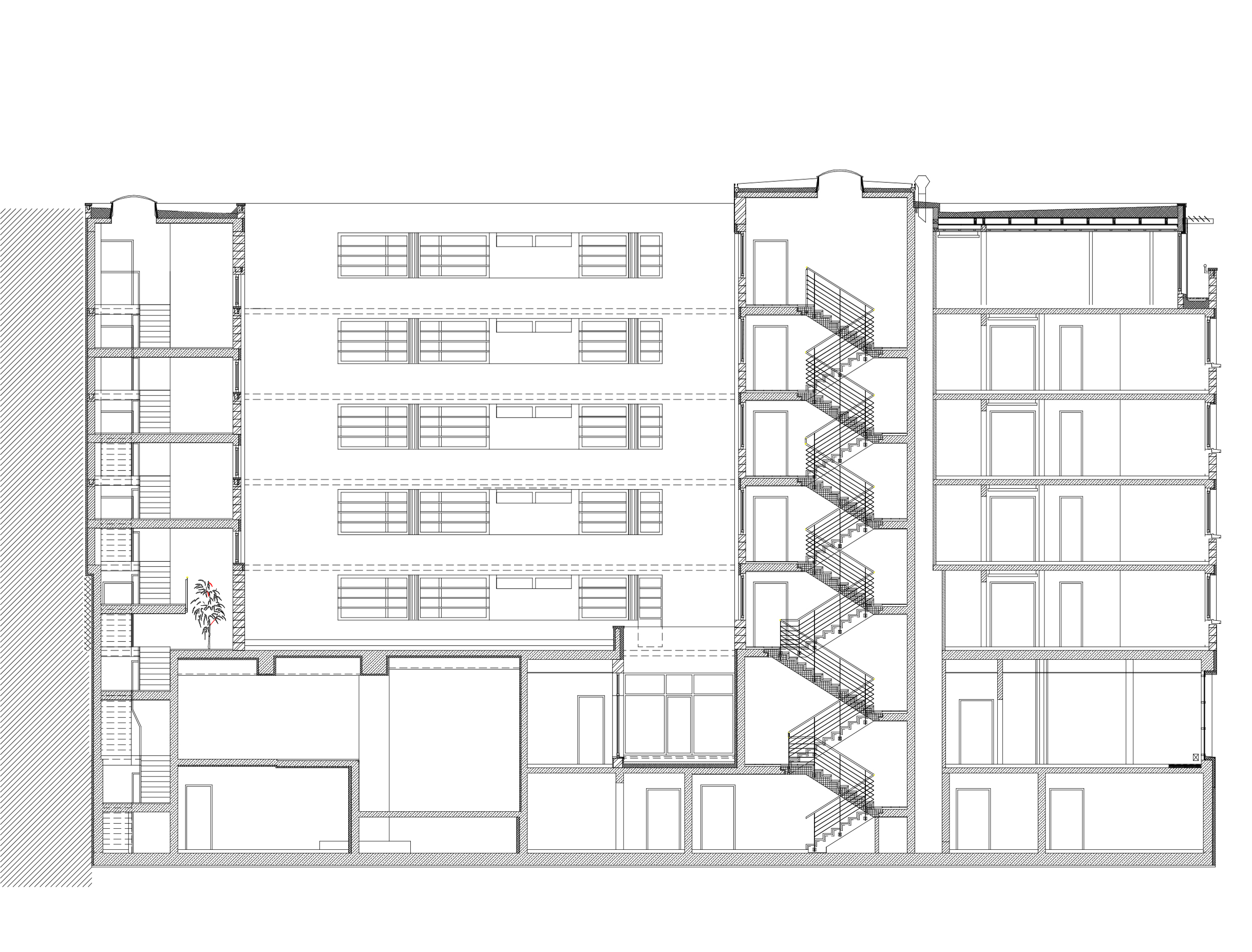
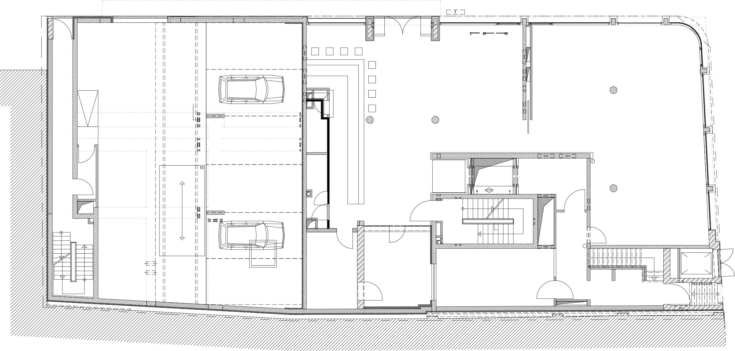
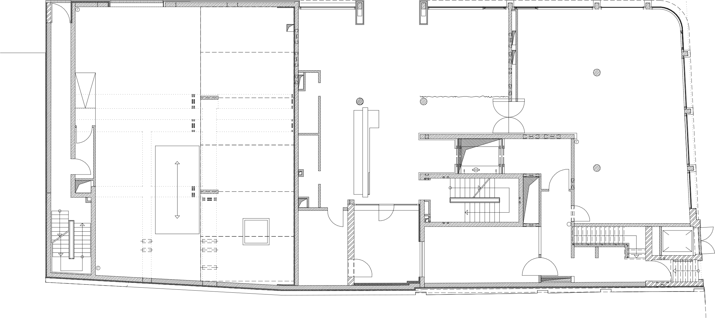
Santo Hotel Köln
Daten
Kategorie:
Hotel
Leistungsphasen nach HOAI:
1-9
Weitere Projekte
Am Iderfenngraben
Pier 51
Markgrafendamm
Scheune Dittmar
Die Macherei München
Hotel Design Werkstatt Salzburg